原始户型图
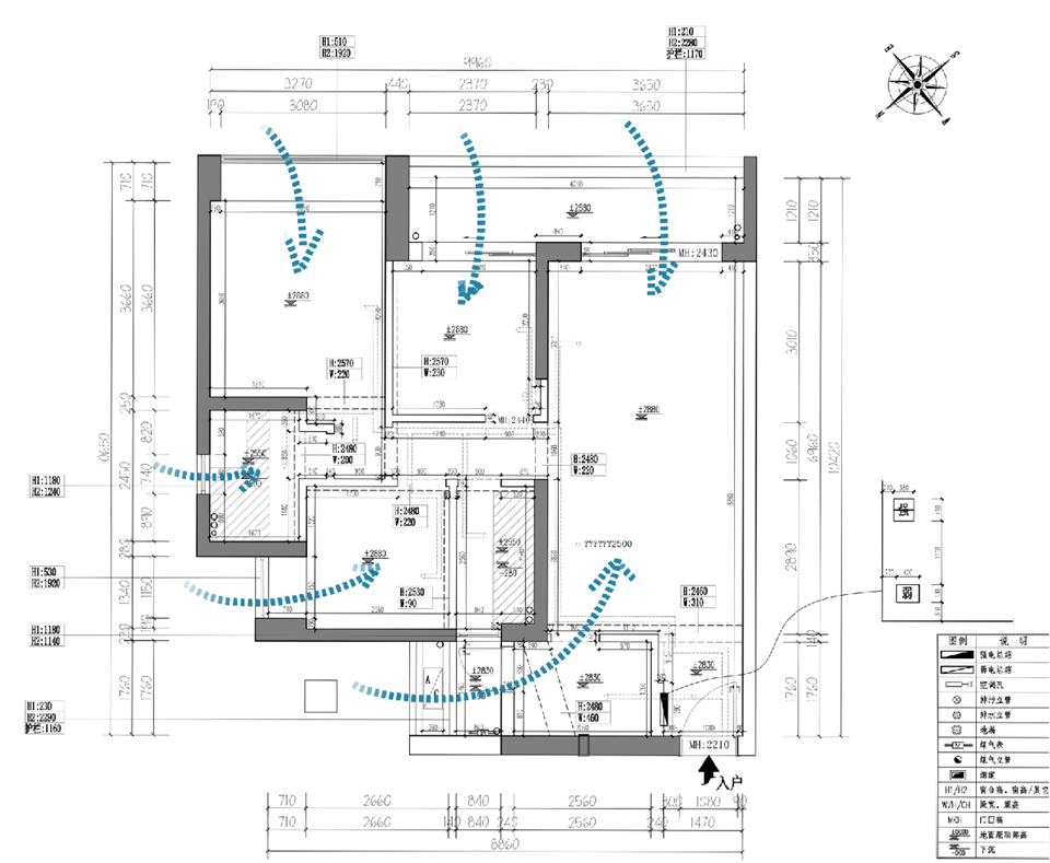
通风分析
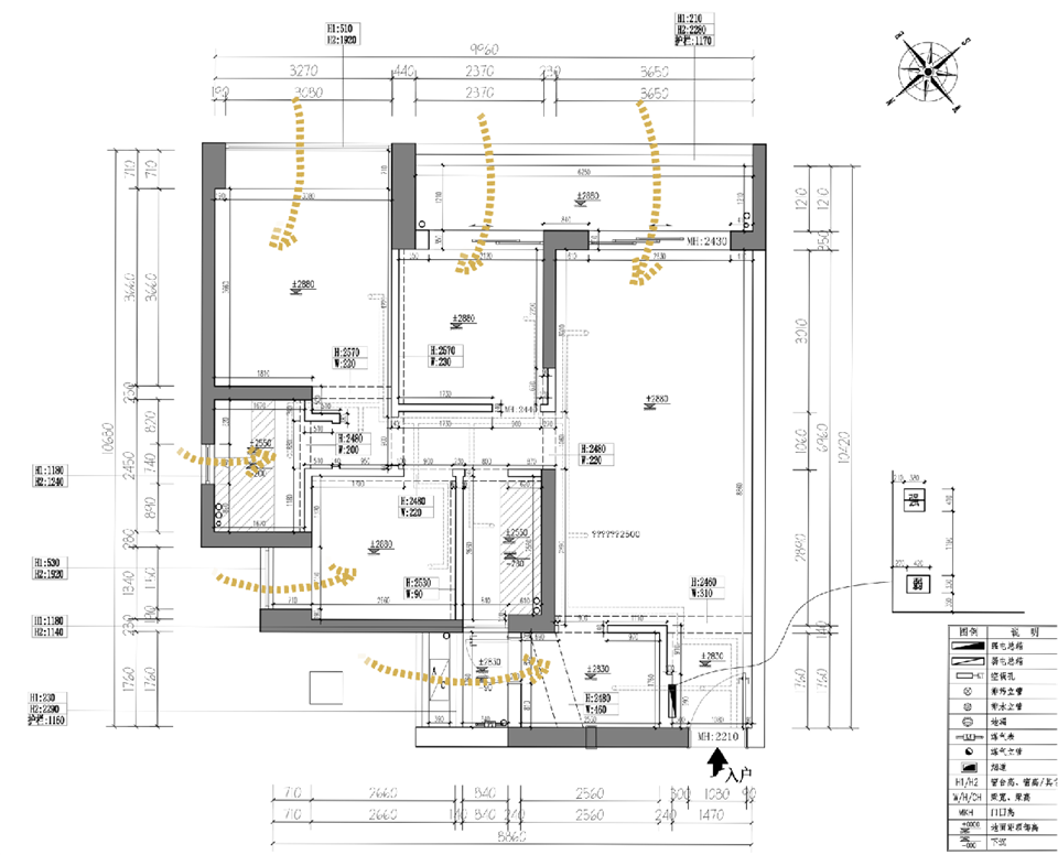
采光分析
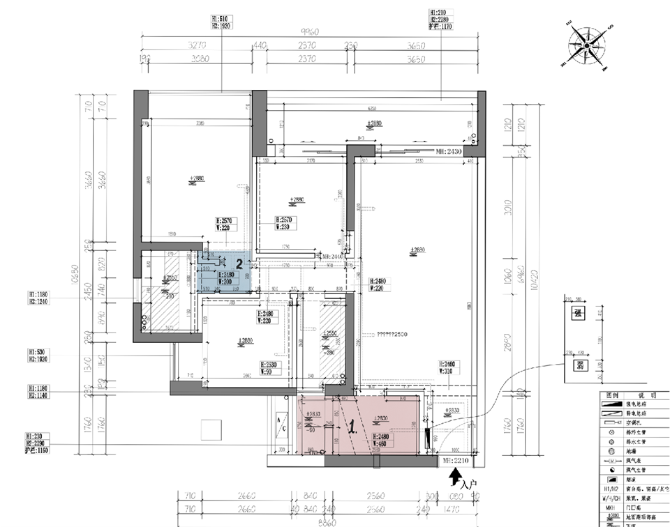
户型结构分析
缺点:
1.厨房过小,台面和储物空间不足。
2.主卧套房过道使用舒适度不高。
优点:
主动线分明,房屋结构相对方正。
户型功能分析
户型方案:
天鹅湖三期现进行楼盘活动,咨询即可获取多份完整设计方案
空间意向图
效果及手绘图展示
Copyright@ 2015-2017 深圳市莫川建筑空间设计有限公司 版权所有 网站地图 粤ICP备17082150号 粤公网安备 44030402000770号